06/02/2025
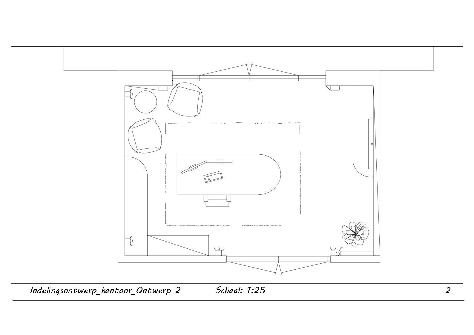
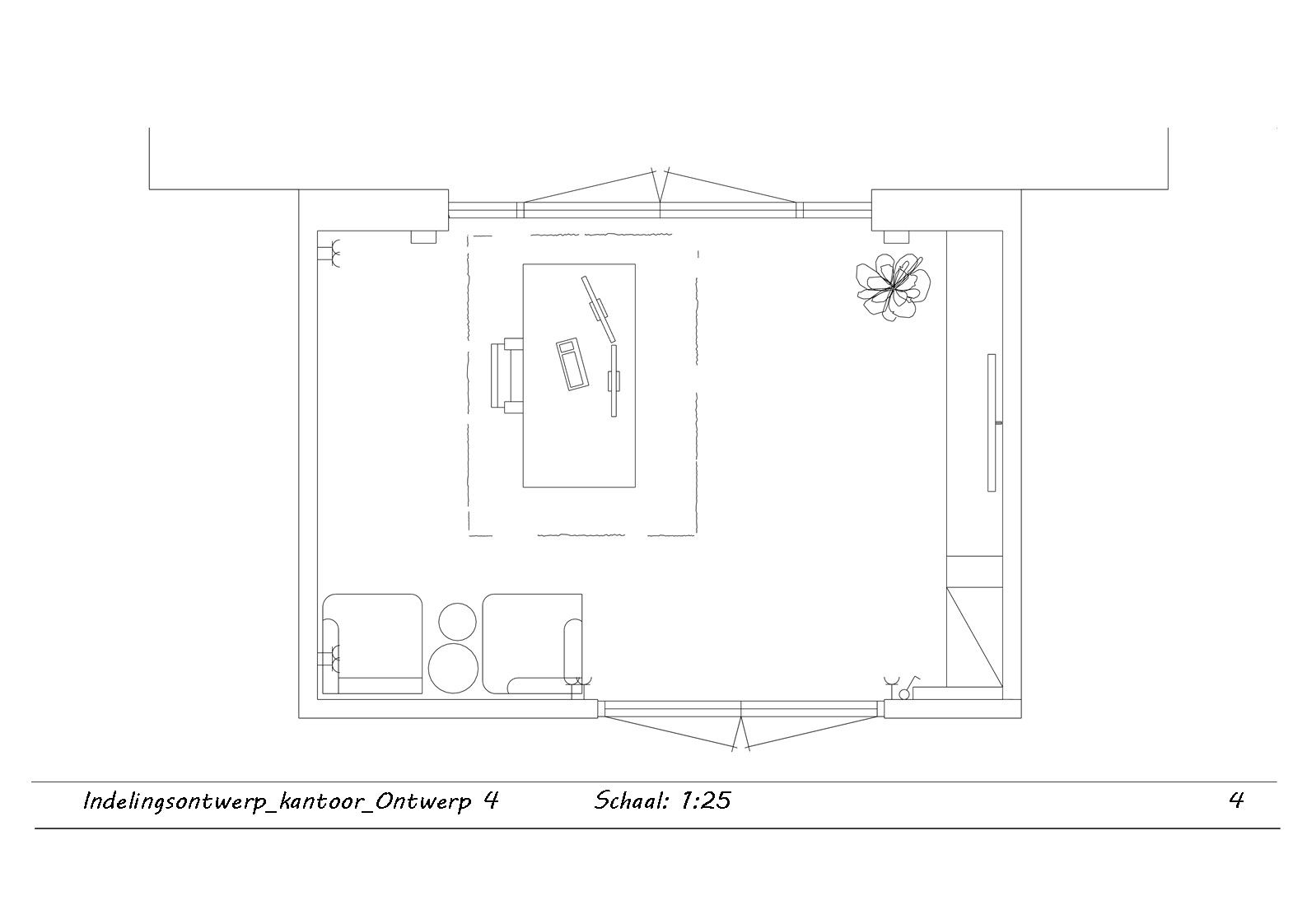
Voor deze klant mocht styl it een volledig nieuw kantoor ontwerpen. De aangeboden producten; 2D indelingsadvies met meerdere concept ontwerpen, persoonlijk moodboard, Wand en afwerk advies, definitief ontwerp uitgewerkt in 3D, uitgewerkte product lijst




